Nieuw

Berkelse Poort 95
Berkel En Rodenrijs

€ 575,- p/m

Overdracht

Huurprijs
€ 575,- p/m
Status
beschikbaar
Aanvaarding
per direct

Bouw

Hoofdbestemming
kantoorruimte
Bouwjaar
2009
Bouwperiode
2001-2010

kantoorruimte

Oppervlakte
17 m²
In units vanaf
17 m²
Luchtbehandelingen
Airco en mechanische ventilatie
Verdiepingen
1

Buitenruimte

Ligging
Bedrijventerrein, kantorenpark, in woonwijk en overig

Parkeergelegenheid

Faciliteiten
Voldoende gratis parkeergelegenheid in de nabije omgeving.

Berkelse Poort 95, Berkel En Rodenrijs

Immobilia presenteert een zeer LUXE kantoorunit van ca. 17m2 voorzien van airco, elektrische sunscreens zonwering en 1 Gigabit/s glasvezel internet. Een schitterende plek voor (startende) ondernemers die behoefte hebben aan een professionele werkplek en van luxe houden!

Dit unieke Business Center is gelegen op een modern en zeer net bedrijventerrein, De Berkelse Poort, op loopafstand van het centrum van Berkel en Rodenrijs. Rondom is voldoende gratis parkeergelegenheid voor de gebruiker en bezoekers. Tevens uitstekend bereikbaar via de RandstadRail en/of bus (ZoRo lijn), de Boterdorpseweg en zeer goed te bereiken vanaf zowel de A12, A13, N470, N471 als de N209.

Begane grond:
Nette entree met de trapopgang, brievenbus en toegang naar de diverse units.

1e Verdieping:
De entree heeft een luxe uitstraling, is recent geschilderd en is voorzien van een prachtige pvc-vloer. De gemeenschappelijke keuken is recent gebouwd en voorzien van een koelkast, vaatwasser, Quooker en biedt tevens plaats aan de koffieautomaat. De drie toiletten zijn luxe te noemen en ook recent vernieuwd. De gemeenschappelijke vergaderruimte is in overleg met de overige gebruikers te reserveren en te gebruiken.

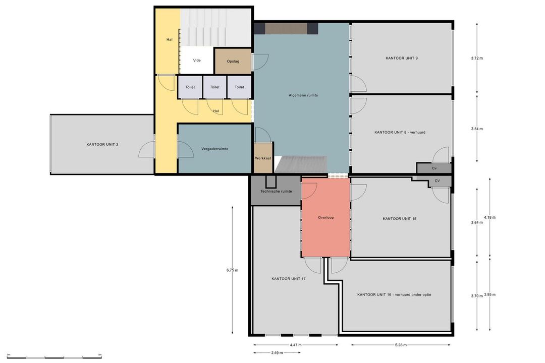
Unit 2:
Luxe kantoorruimte van ca. 17m2 (VVO) geschikt voor drie (3) werkplekken. Mooie lichtinval in de kantoorruimte, te openen ramen en voorzien van een pvc-vloer. Uitgevoerd met een airco, radiator, ledverlichting, alarminstallatie en zowel bedraad als draadloos (WIFI) internet (Glasvezel).

Nog even een overzicht op een rij:
- ca. 17,2m2 VVO (verhuurbaar vloeroppervlak);
- 24 uur per dag, 7 dagen per week toegankelijk!
- Gemeenschappelijke vergaderruimte;
- Gemeenschappelijke luxe toiletten, schoonmaak twee (2) keer per week;
- Ledverlichting;
- Voldoende gratis parkeermogelijkheden rondom aanwezig;
- Goed bereikbaar via diverse uitvalswegen en het openbaar vervoer.

Huurcondities:
Onder de servicekosten vallen onder andere:
* Gas, water en licht;
* Super snel 1Gbit/s glasvezel internet, zowel upload als download, met eigen V-LAN;
* WiFi;
* Airco;
* Verwarming;
* Onbeperkt koffie en thee, zowel voor eigen gebruik als voor klanten;
* Schoonmaak algemene ruimtes en toiletten;
* Glasbewassing aan de buitenzijde;
* Alarm (in eigen kantoorunit) en alarmopvolging d.m.v. NVD Beveiligingsdienst;
* schoonmaak eigen kantoorunit optioneel. Vraag naar de mogelijkheden.

Huurtermijn:
In overleg met verhuurder.

Huuringangsdatum:
Per direct beschikbaar.

Huurprijsherziening:
Jaarlijks op basis van de CPI-index van het CBS.

Huurbetaling:
Per maand vooruit.

Servicekosten:
€ 125,- excl. btw per maand.

Bankgarantie/waarborgsom:
Drie (3) maanden huur + btw.

Huurovereenkomst:
Conform model ROZ.

BTW:
Verhuurder wenst te opteren voor btw-belaste huur en verhuur. Ingeval huurder de btw niet kan verrekenen zal de huurprijs worden verhoogd ter compensatie van de gevolgen van het vervallen van de mogelijkheid om te opteren voor btw-belaste huur.

Locatie

 

Neem contact met ons op