Neem contact op
Hoe kunnen wij je helpen?
19:29

Aventurijn 1004

3316LB Dordrecht

Beschikbaar

€ 2.900,- p/m

Omschrijving

Immobilia presenteert met trotst een per direct een multifunctionele en representatieve bedrijf-/kantoorruimte met entresol aan van ca. 394 m2 (BVO), gelegen op het verzorgde bedrijventerrein Dordtse Kil III. Het object beschikt over drie eigen parkeerplaatsen, waarvan twee met laadpaal en is uitermate geschikt voor ondernemers die werkplaats, opslag en kantoor willen combineren.
Dankzij de gunstige ligging is het pand uitstekend bereikbaar via de A16, A15 en de N3, met snelle verbindingen richting Rotterdam, Breda, Antwerpen en omliggende regio’s.

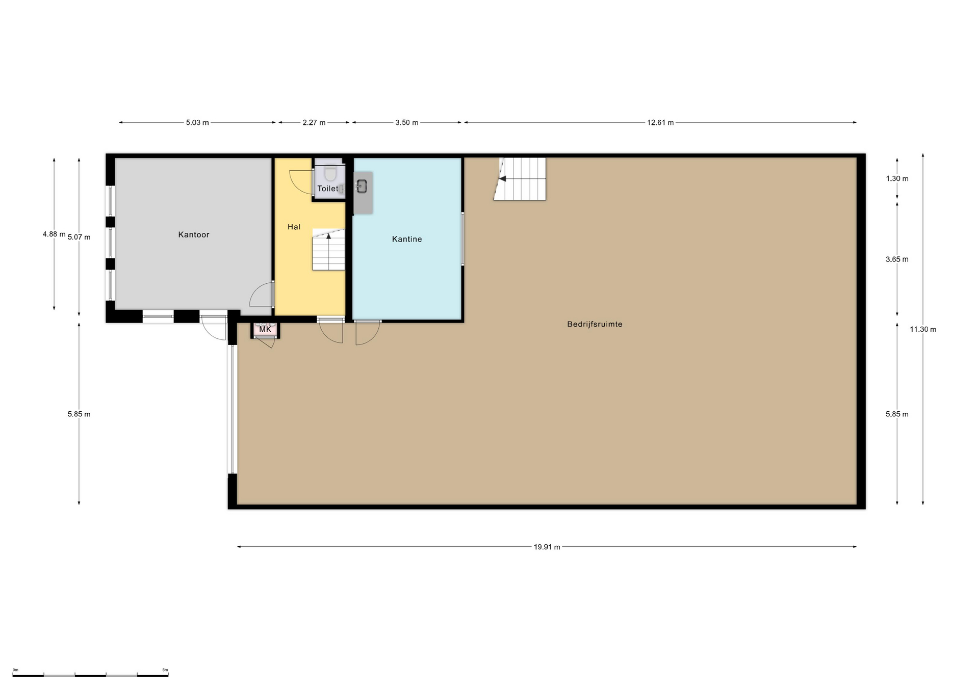
Begane grond:
Via de overheaddeur betreedt u de ruime bedrijfshal van ca. 181m2 met een vrije hoogte van ca. 6 meter. De elektrische overheaddeur (ca. 4 meter breed en 4,2 meter hoog) is voorzien van een separate loopdeur. De hal is uitgerust met een heater en een laadpunt voor elektrische voertuigen.

Aansluitend bevindt zich de kantine van ca. 18m2, voorzien van een pantry met water- en elektravoorzieningen. De entresol is bereikbaar via een vaste trap en meet in totaal ca. 82m2, inclusief bergkast.

Vanuit de hal is via de overloop toegang tot de kantoorruimte op de begane grond van ca. 25m2, afgewerkt met een laminaatvloer en voorzien van twee radiatoren. Tevens bevindt zich hier het volledig betegelde toilet met hangend closet en fonteintje.

1e Verdieping:
Kantoorruimte van ca. 37m2 met een raampartij aan de voorzijde. De ruimte is voorzien van stopcontacten rondom, utp-aansluitingen, twee verwarmingen, een airco-unit en ledverlichting.

Locatie:
Gelegen op bedrijventerrein ‘Dordtse Kil III’. Dit terrein is goed bereikbaar vanaf de Rijksweg A16 en Randweg N3.

Bijzonderheden:
- Drie eigen parkeerplaatsen, waarvan twee met laadpaal.
- Elektrische overheaddeur met loopdeur van 4 meter breed en 4,2 hoog.
- Heater in de bedrijfshal.
- Alarm- en camerasysteem aanwezig.
- Airco in de kantoorruimte op de 1e verdieping.
- Ledverlichting in de kantoorruimtes aanwezig.
- Toiletruimte betegeld voorzien van hangend toilet en fonteintje.
- Pantry.


Huurspecificaties:
Huurprijs:
€ 34.800,- per jaar excl. btw en excl. servicekosten.

Huurtermijn:
In overleg met verhuurder.

Huuringangsdatum:
Beschikbaar per direct.

Huurprijsherziening:
Jaarlijks op basis van de CPI-index van het CBS.

Huurbetaling:
Per maand vooruit.

Nutsvoorzieningen:
Huurprijs excl. G/W/L.

Servicekosten:
N.v.t.

Bankgarantie/waarborgsom:
Drie (3) maanden huur incl. servicekosten en btw.

Huurovereenkomst:
Conform model ROZ.

BTW:
Verhuurder wenst te opteren voor BTW-belaste huur en verhuur. Ingeval huurder de BTW niet kan verrekenen zal de huurprijs worden verhoogd ter compensatie van de gevolgen van het vervallen van de mogelijkheid om te opteren voor BTW-belaste huur.

Kenmerken

Overdracht

Aangeboden sinds
14 januari 2026
Status
Beschikbaar
Aanvaarding
Direct

Bouw

Hoofdfunctie
Bedrijfsruimte
Soort bouw
Bestaande bouw
Bouwjaar
2008

Oppervlakten

Oppervlakte
332 m²
Bedrijfshaloppervlakte
332 m²
Vrije hoogte
620 m
Draagvermogen
1500 kg/m²
Perceel
258 m²

Indeling

Voorzieningen
Overhead deuren, krachtstroom, betonvloer en toilet

Parkeergelegenheid

Parkeerplaatsen
3 niet-overdekte parkeerplaatsen

Media

Locatie

Meer informatie?