Neem contact op
Hoe kunnen wij je helpen?
21:37

Braillestraat 87

2652XV Berkel En Rodenrijs

Beschikbaar

€ 1.950,- p/m

Omschrijving

Immobilia presenteert een multifunctionele bedrijfshal met keurige kantoorruimte van in totaal ca. 128m2 (BVO). Uitgevoerd met een overheaddeur en twee (2) eigen parkeerplaatsen. De bedrijfshal is voorzien van vloerverwarming en de kantoorruimte is uitgevoerd met een airco. Centraal gelegen op bedrijventerrein Oudeland in Berkel en Rodenrijs.
AUTOBEDRIJVEN/GARAGE ZIJN NIET TOEGESTAAN.

Begane grond:
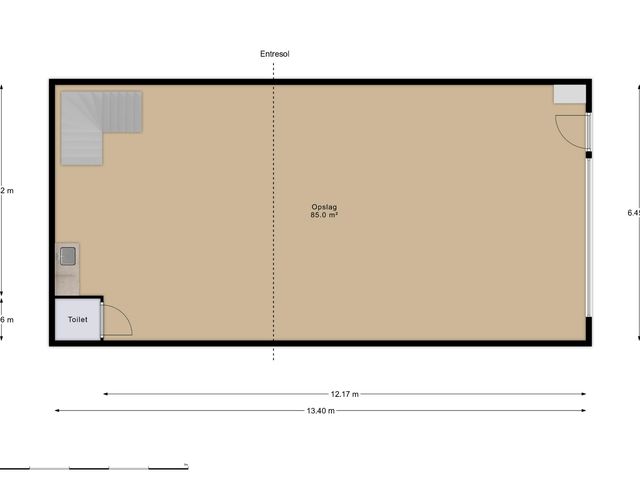
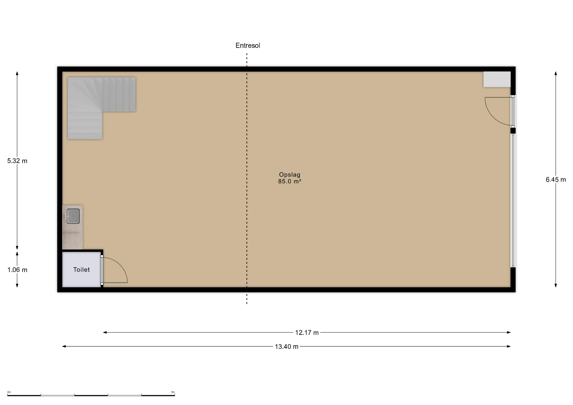
Bedrijfshal van ca. 86m2 (VVO) met een hoogte van maar liefst 7,25 meter! De bedrijfshal is te bereiken via een loopdeur en overheaddeur. De overheaddeur is ca. 4 meter hoog en 4 meter breed. De pantry en het toilet zijn links in de hoek gesitueerd.

Voor de deur liggen twee parkeerplaatsen die horen bij de bedrijfshal. De hal is voorzien van vloerverwarming middels aardwarmte.

Kantoor/entresol:
De nette kantoorruimte meet ca. 31m2 (VVO) en ligt aan de achterzijde van de bedrijfshal. Bereikbaar middels een stalen trap vanuit de hal. Keurig afgewerkt en voorzien van een airco-unit, ledverlichting en stopcontacten rondom. Vanuit het kantoor heb je zicht op de hal.

Bijzonderheden:
- Kantoorruimte voorzien van airco.
- Overheaddeur van 4 meter breed en 4 meter hoog.
- Verwarming middels aardwarmte en vloerverwarming.
- Twee (2) eigen parkeerplaatsen.

Vloerbelasting:
- Begane grond: 1.500 kg per m2.
- 1e verdieping: Beton 500 kg per m2.

Huurspecificaties:
Huurprijs:
€ 23.400,- per jaar excl. btw.

Huurtermijn:
In overleg met verhuurder.

Huuringangsdatum:
Beschikbaar per direct.

Huurprijsherziening:
Jaarlijks op basis van de CPI-index van het CBS

Huurbetaling:
Per maand vooruit.

Nutsvoorzieningen:
Huurprijs excl. G/W/L

Servicekosten:
€ 65,- per maand excl. BTW.

Bankgarantie/waarborgsom:
Drie (3) maanden huur excl. BTW en servicekosten.

Huurovereenkomst:
Conform model ROZ.

BTW:
Verhuurder wenst te opteren voor BTW-belaste huur en verhuur. Ingeval huurder de BTW niet kan verrekenen zal de huurprijs worden verhoogd ter compensatie van de gevolgen van het vervallen van de mogelijkheid om te opteren voor BTW-belaste huur.

Kenmerken

Overdracht

Aangeboden sinds
15 januari 2026
Status
Beschikbaar
Aanvaarding
Direct

Bouw

Hoofdfunctie
Bedrijfsruimte
Soort bouw
Bestaande bouw
Bouwjaar
2023

Oppervlakten

Oppervlakte
92 m²
Bedrijfshaloppervlakte
92 m²
Vrije hoogte
720 m
Draagvermogen
1500 kg/m²
Perceel
348 m²

Indeling

Voorzieningen
Overhead deuren, betonvloer, toilet en pantry

Omgeving

Bereikbaarheid
Bushalte op 1500 m tot 2000 m, Metrohalte op 2000 m tot 3000 m en Snelwegafrit op 4000 m tot 5000 m
Lokale voorzieningen
Bank op 2000 m tot 3000 m, Ontspanning op 2000 m tot 3000 m, Restaurant op 2000 m tot 3000 m en Winkel op 2000 m tot 3000 m

Parkeergelegenheid

Parkeerplaatsen
2 niet-overdekte parkeerplaatsen

Media

Locatie

Meer informatie?