Neem contact op
Hoe kunnen wij je helpen?
21:41

Industrieweg 71 15

2651BC BERKEL EN RODENRIJS

Beschikbaar

€ 465,- p/m

Omschrijving

Immobilia presenteert een nieuwbouw bedrijfsruimte van ca. 27m2 (BVO) gelegen op de begane grond en te gebruiken voor opslag, stalling, werkplek of uitvoeren van een hobby. De unit bevindt zich in Drive in units, op een centrale locatie in Berkel en Rodenrijs. Binnen enkele autominuten ben je op de A13 en de A20 en tevens goed bereikbaar via de RandstadRail. De unit is gelegen binnen een afgesloten en bewaakt gebouw en is altijd toegankelijk middels een automatische overheaddeur.

Het complex bestaat uit een viertal verdiepingen. Op alle verdiepingen tref je een sanitaire ruimte met toiletten, urinoir en wastafel.

AUTOBEDRIJVEN/GARAGE ZIJN NIET TOEGESTAAN.

Unit 15:
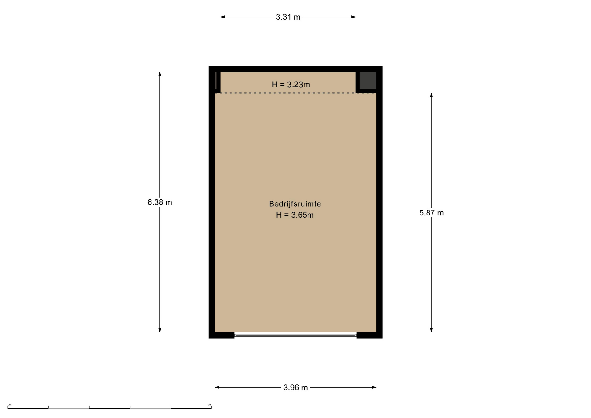
Binnenkomst via een elektrische overheaddeur. Brede rijbanen in het complex met toegang tot een achter gelegen buitenruimte. Bedrijfsunit van ca. 27m2 gelegen op de begane grond met een hoogte van ca. 3,65 meter. De unit is toegankelijk middels een elektrisch bedienbare overheaddeur met loopdeur. De ruimte heeft een maximale diepte van 6,38m en een maximale breedte van 3,96m. De uitvoering bestaat uit ledverlichting en verschillende wandcontactdozen.

Uitermate geschikt voor opslag van goederen, stalling van een auto of aanhanger of opslag van materialen of inboedel. De ruimte kan ook perfect dienen voor het uitvoeren van een hobby of werkplek.

Bijzonderheden:
- Vrije hoogte ca 3,65.
- Maximale vloerbelasting 1.000 kg/m2.
- Automatisch bedienbare overheaddeur (3,0m breed x 3,2m hoog) met afstandbediening.
- Drie wandcontactdozen en een combischakelaar op led verlichtingsarmaturen.
- Scheidingswanden van kalkzandsteen veilingblokken.
- 24/7 camerabewaking.
- Inschrijven op het adres is mogelijk.
- Gedeelde toiletvoorzieningen.
- Wifi aanwezig.

Vloerbelasting:
- 1.000 kg/m2.

Huurspecificaties:

Huurprijs:
€ 5.580,- per jaar excl. btw en excl. servicekosten.

Servicekosten:
€ 26,- per maand excl. € 10,- voorschot elektra.

Huurtermijn:
Periode van 12 maanden.

Huuringangsdatum:
Beschikbaar per direct.

Huurprijsherziening:
Jaarlijks op basis van de CPI-index van het CBS.

Huurbetaling:
Per maand vooruit.

Nutsvoorzieningen:
Diverse elektropunten.

Bankgarantie/waarborgsom:
Drie (3) maanden huur excl. btw en servicekosten.

Huurovereenkomst:
Conform model ROZ.

BTW:
Verhuurder wenst te opteren voor BTW-belaste huur en verhuur. Ingeval huurder de BTW niet kan verrekenen zal de huurprijs worden verhoogd ter compensatie van de gevolgen van het vervallen van de mogelijkheid om te opteren voor BTW-belaste huur.

Kenmerken

Overdracht

Aangeboden sinds
26 januari 2026
Status
Beschikbaar
Aanvaarding
Direct

Bouw

Hoofdfunctie
Bedrijfsruimte
Soort bouw
Bestaande bouw
Bouwjaar
2025

Oppervlakten

Oppervlakte
27 m²
Bedrijfshaloppervlakte
27 m²
Vrije hoogte
369 m
Draagvermogen
1000 kg/m²

Indeling

Voorzieningen
Overhead deuren en betonvloer

Omgeving

Bereikbaarheid
Bushalte op 500 m tot 1000 m, Metrohalte op 500 m tot 1000 m en Snelwegafrit op 5000 m of meer
Lokale voorzieningen
Ontspanning op 1500 m tot 2000 m, Restaurant op 1500 m tot 2000 m en Winkel op 1500 m tot 2000 m

Media

Locatie

Meer informatie?