Neem contact op
Hoe kunnen wij je helpen?
21:42

Nijverheidstraat 1b

2751GR MOERKAPELLE

Verhuurd

Verhuurd

Omschrijving

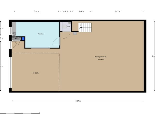
Immobilia presenteert een ruime bedrijfshal van ca. 256m2 BVO verdeeld over twee verdiepingen en met een eigen parkeerplaats voor de deur. Op de begane grond tref je kantine van ca. 15m2 met pantry, toilet en opslagruimte. Op de 1e verdieping is er ruimte voor opslag en is er tevens aan aparte afgesloten ruimte van ca. 41m2, eveneens bedoeld voor opslag. Goed gelegen op enkele autominuten afstand van de oprit naar de A12 en de A20.
AUTOBEDRIJVEN ZIJN NIET TOEGESTAAN!

Begane grond:
Binnenkomst in de bedrijfshal met toegang tot het toilet en de kantine met pantry. Het totale oppervlak beslaat ca. 130m2. De kantine is ca. 15m2 en is gelegen aan de voorzijde van het pand. Keurige afwerking met wandpanelen met houtlook en tevens voorzien van ledverlichting. De pantry is gelegen onder het raam en is uitgevoerd met een boiler. Het toilet is in zijn geheel betegeld en voorzien van een hangend toilet en een fonteintje. Naast het toilet aan de buitenzijde tref je tevens een uitstortgootsteen aan.

De bedrijfshal beslaat ca. 111m2. Het voorste deel staat in open verbinding met de eerste verdieping en heeft een hoogte van ca. 7 meter. Hierdoor is het mogelijk om goederen naar boven te verplaatsen en op te slaan. Onder de verdiepingsvloer meet de hoogte ca. 3,50 meter. Rondom stopcontacten en tevens krachtstroom aansluitingen. Middels een stalen trap toegang tot de 1e verdieping.

1e Verdieping:
Open ruimte van ca. 65m2 met diverse stopcontacten rondom. Hoogte tot aan het plafond is ca. 3,18m. Via de vide is het mogelijk om goederen middels een vorkheftruck naar boven te brengen. Aan de achterzijde tref je een afgesloten ruimte van ca. 41m2 dat dienst kan doen als magazijn.

Bijzonderheden:
- Parkeerplaats op eigen terrein.
- Apart toilet, in zijn geheel betegeld en voorzien van een fonteintje.
- Elektrisch bedienbare overheaddeur en een aparte loopdeur.
- Kantine van ca. 15m2 met pantry voorzien van een boiler.
- Op diverse punten krachtstroom.
- Alarm- en brandmeldinstallatie.

Vloerbelasting:
- Begane grond (beton): 1.000 kg per m2.
- 1e verdieping (beton): 350 kg per m2.

Huurspecificaties:
Huurprijs:
€ 22.740,- per jaar excl. servicekosten.

Huurtermijn:
In overleg met verhuurder.

Huuringangsdatum:
Beschikbaar per direct.

Huurprijsherziening:
Jaarlijks op basis van de CPI-index van het CBS

Huurbetaling:
Per maand vooruit.

Nutsvoorzieningen:
Huurprijs excl. G/W/L.

Servicekosten:
€ 50,- per maand excl. BTW.

Bankgarantie/waarborgsom:
Een maand huur incl. servicekosten en btw.

Huurovereenkomst:
Conform model ROZ.

BTW:
Verhuurder wenst te opteren voor BTW-belaste huur en verhuur. Ingeval huurder de BTW niet kan verrekenen zal de huurprijs worden verhoogd ter compensatie van de gevolgen van het vervallen van de mogelijkheid om te opteren voor BTW-belaste huur.

Kenmerken

Overdracht

Aangeboden sinds
7 januari 2026
Status
Verhuurd
Aanvaarding
Direct

Bouw

Hoofdfunctie
Bedrijfsruimte
Soort bouw
Bestaande bouw
Bouwjaar
2024

Oppervlakten

Oppervlakte
256 m²
Bedrijfshaloppervlakte
256 m²
Vrije hoogte
687 m
Draagvermogen
1000 kg/m²
Perceel
152 m²

Indeling

Voorzieningen
Overhead deuren, krachtstroom, betonvloer, toilet en pantry

Omgeving

Bereikbaarheid
Bushalte op 500 m tot 1000 m, NS Station op 5000 m of meer en Snelwegafrit op 3000 m tot 4000 m
Lokale voorzieningen
Bank op 500 m tot 1000 m, Ontspanning op 500 m tot 1000 m, Restaurant op 500 m tot 1000 m en Winkel op 500 m tot 1000 m

Parkeergelegenheid

Parkeerplaatsen
1 niet-overdekte parkeerplaatsen

Media

Locatie

Meer informatie?