Neem contact op
Hoe kunnen wij je helpen?
21:39

Prismalaan West 53

2665PC BLEISWIJK

Beschikbaar

€ 1.195,- p/m

Omschrijving

Immobilia presenteert een multifunctionele bedrijfshal op een zichtlocatie van ca. 120m2 (BVO) met twee eigen parkeerplaatsen, bestaande uit een begane grond en (houten) verdiepingsvloer. De bedrijfshal beschikt over een elektrische overheaddeur en twee (2) eigen parkeerplaatsen. Centraal gelegen op bedrijventerrein 'Prisma' in Bleiswijk. Op enkele autominuten afstand van de A12 (Den Haag en Utrecht) en uitvalswegen zeer nabij aanwezig.
AUTOBEDRIJVEN/GARAGE ZIJN NIET TOEGESTAAN.

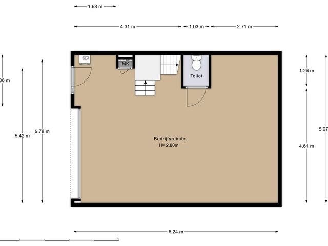
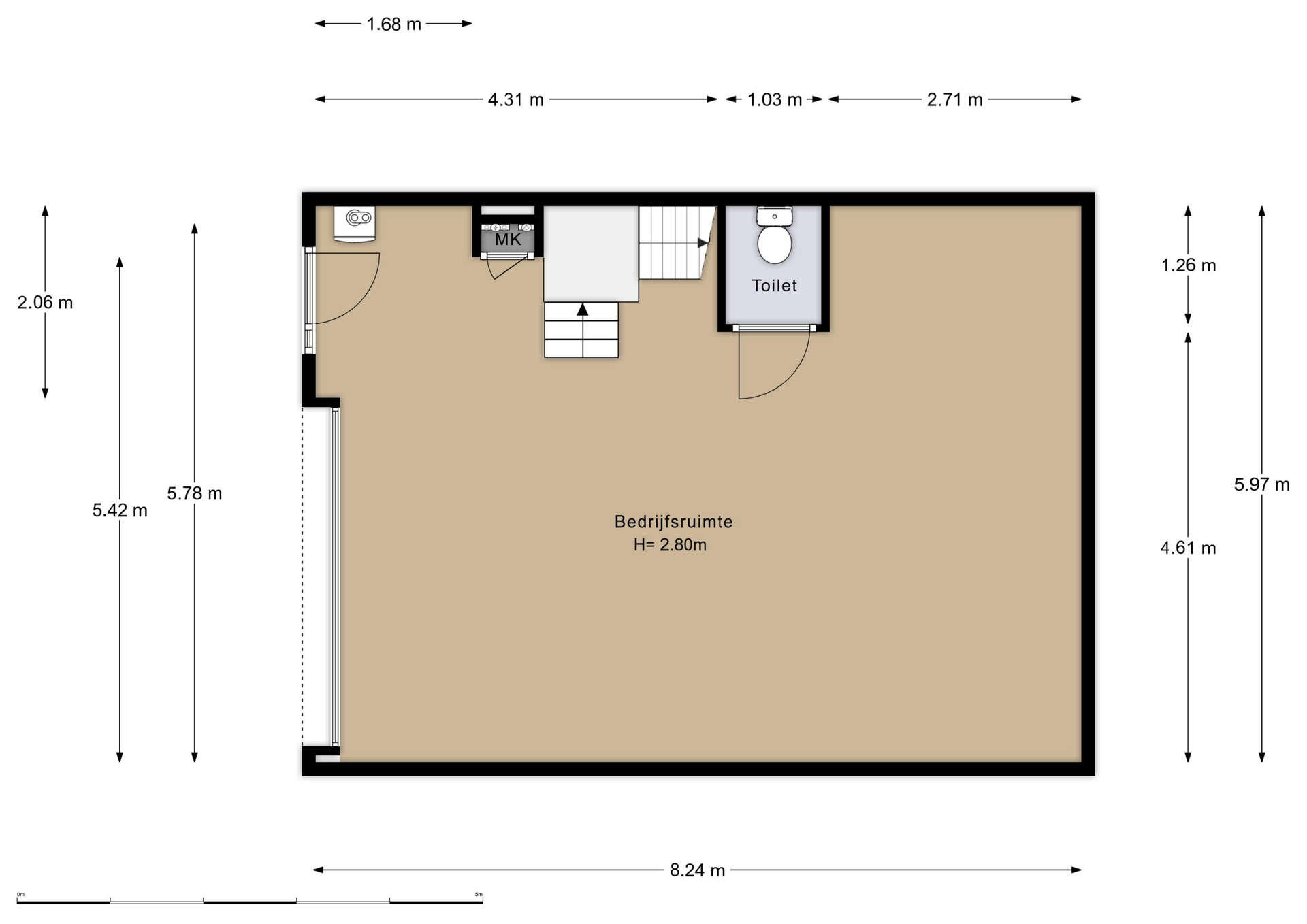
Begane grond:
Binnenkomst in de bedrijfshal van ca. 48m2 (BVO) met een hoogte van 2,80 meter. Volledig voorzien van ledverlichting en diverse krachtstroom aansluitingen. Toilet en aparte gootsteen in de hal. De hal heeft een betonnen vloer met een vloerbelasting van 1.500 kg/m2. Voor de deur ligt één parkeerplaats, de tweede parkeerplaats is aan de zijkant gelegen. Beide horen bij de bedrijfshal.
Trap naar de eerste verdieping.

1e Verdieping:
Verdieping van ca. 32m2 met een raam aan de voorzijde. Tevens tref je hier de gas heater aan. Eveneens voorzien van led verlichting en tevens een lichtstraat voor natuurlijk licht. Middels een gat in de vloer is het mogelijk om goederen van beneden naar boven te verplaatsen.

De entresol is ca. 12m2 en is bereikbaar vanaf de vloer middels een trap.

Bestemming:
De voor 'Bedrijventerrein' aangewezen gronden zijn bestemd voor ter plaatse van de aanduiding 'bedrijf tot en met categorie 3.1': bedrijven tot en met milieucategorie 3.1 als opgenomen in de Staat van bedrijfsactiviteiten, als onderdeel van deze regels.

Bijzonderheden:
- Elektrisch bedienbare overheaddeur en aparte toegangsdeur.
- Toilet aanwezig.
- Gas heater op de eerste verdieping voor verwarming.
- Twee (2) eigen parkeerplaatsen.
- Voldoende krachtstroom aanwezig.

Vloerbelasting:
- Begane grond (beton): 1.500 kg per m2.
- 1e verdieping (hout): 350 kg per m2.

Huurspecificaties:
Huurprijs:
€ 14.340,- per jaar excl. btw en excl. servicekosten.

Huurtermijn:
Minimaal 24 maanden.

Huuringangsdatum:
Beschikbaar per direct.

Huurprijsherziening:
Jaarlijks op basis van de CPI-index van het CBS

Huurbetaling:
Per maand vooruit.

Nutsvoorzieningen:
Huurprijs excl. G/W/L

Servicekosten:
€ 50,- per maand excl. BTW.

Bankgarantie/waarborgsom:
Drie maanden huur excl. BTW

Huurovereenkomst:
Conform model ROZ.

BTW:
Verhuurder wenst te opteren voor BTW-belaste huur en verhuur. Ingeval huurder de BTW niet kan verrekenen zal de huurprijs worden verhoogd ter compensatie van de gevolgen van het vervallen van de mogelijkheid om te opteren voor BTW-belaste huur.

Kenmerken

Overdracht

Aangeboden sinds
29 januari 2026
Status
Beschikbaar
Aanvaarding
Direct

Bouw

Hoofdfunctie
Bedrijfsruimte
Soort bouw
Bestaande bouw
Bouwjaar
2014

Oppervlakten

Oppervlakte
120 m²
Bedrijfshaloppervlakte
120 m²
Vrije hoogte
280 m
Draagvermogen
1500 kg/m²

Indeling

Voorzieningen
Lichtstraten, overhead deuren, krachtstroom, betonvloer, heater, toilet en pantry

Omgeving

Bereikbaarheid
NS Station op 1500 m tot 2000 m en Snelwegafrit op 2000 m tot 3000 m
Lokale voorzieningen
Bank op 3000 m tot 4000 m, Ontspanning op 2000 m tot 3000 m, Restaurant op 1000 m tot 1500 m en Winkel op 3000 m tot 4000 m

Parkeergelegenheid

Parkeerplaatsen
2 niet-overdekte parkeerplaatsen

Media

Locatie

Meer informatie?