Neem contact op
Hoe kunnen wij je helpen?
15:37

Geertsemastraat 6B

3038XC ROTTERDAM

Verkocht onder voorbehoud

€ 319.500,- k.k.

Omschrijving

Woon jij graag dichtbij de stad, maar heb je ook behoefte aan rust en comfort? Immobilia presenteert met trots deze charmante en moderne jaren ’30-benedenwoning. De woning beschikt over één riante slaapkamer, een royale woonkamer met open keuken en een diepe leuke achtertuin. Het woonoppervlakte bedraagt ca. 49m² en de woning is gelegen in een rustige wijk in Rotterdam-Noord. De rustige ligging combineert moeiteloos met de praktische bereikbaarheid: winkels, openbaar vervoer en uitvalswegen bevinden zich op loopafstand. Hecht jij waarde aan een knusse en authentieke woning met karakter? Dan is dit de woning die perfect bij jou past. Heb je interesse? Plan dan gerust een bezichtiging bij ons in!

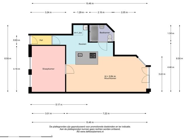
Indeling:
Via de hal heb je toegang tot de royale woonkeuken met een keukeneiland, voorzien van een 4-pits gasfornuis, oven, vaatwasser, spoelbak, een houten werkblad en voldoende kastruimte. Aangrenzend bevindt zich de woonkamer van 21m², die een karakteristieke uitstraling heeft en is voorzien van grote raampartijen. Via de openslaande deuren aan de achterzijde van de woonkamer heb je toegang tot de tuin. De achtertuin is gelegen op het zonnige zuid-oosten en is speels aangelegd.

Via de woonkamer heb je toegang tot de slaapkamer met een originele glas-in-looddeur, een echte eyecatcher in de woning. De slaapkamer van 13m² voelt bijzonder licht aan dankzij de grote raampartijen met uitzicht over de straat. Deze slaapkamer is gelegen aan de voorzijde van de woning.

De badkamer is bereikbaar via de woonkeuken. Met een oppervlakte van circa 3m² is deze voorzien van diverse gemakken, waaronder een ligbad, een handdoekradiator, een wastafel, kastruimte en een regendouche. Via een te openen raam kan er geventileerd worden. Tevens bevindt zich hier de opstelling van de cv-ketel.

De gehele woning is voorzien van een laminaat vloer.

Bijzonderheden:
- Charmante en moderne jaren ’30-benedenwoning met tuin.
- Tuin gelegen op het zuidoosten.
- Gelegen in een rustige wijk.
- Cv-ketel uit 2023.
- Energielabel D.

Toelichting NEN 2580:
De meetinstructie is gebaseerd op NEN 2580. De meetinstructie is bedoeld om een meer eenduidige manier van meten toe te passen voor het geven van een indicatie van de gebruiksoppervlakte. De meetinstructie sluit verschillen in meetuitkomsten niet volledig uit, door bijvoorbeeld interpretatieverschillen, afrondingen of beperkingen bij het uitvoeren van de meting. Bijgevoegde plattegronden zijn ingemeten volgens de meetinstructie.

Alle verstrekte informatie moet beschouwd worden als een uitnodiging tot het doen van een bod of om in onderhandeling te treden. Er kunnen geen rechten worden ontleend aan deze informatie.

Kenmerken

Overdracht

Vraagprijs
€ 319.500 k.k.
Vraagprijs per m²
€ 6.520
Aangeboden sinds
24 februari 2026
Status
Verkocht onder voorbehoud
Aanvaarding
Direct

Bouw

Soort woning
Appartement
Soort appartement
Benedenwoning
Bouwjaar
1934
Soort dak
Zadeldak

Oppervlakten en inhoud

Oppervlakte wonen
49 m²
Oppervlakte externe bergruimte
3 m²
Inhoud
179 m³

Indeling

Aantal kamers
2
Aantal slaapkamers
1
Aantal badkamers
1
Badkamervoorzieningen
Ligbad, toilet, douche en wastafel
Aantal woonlagen
1 woonlaag
Gelegen op
3e woonlaag
Voorzieningen
Tv-kabel, glasvezel kabel en natuurlijke ventilatie

Energie

Energielabel
D
Verwarming
Cv-ketel
Warm water
Cv-ketel
Cv-ketel
Remeha Tzerra (combiketel uit 2023)

Buitenruimte

Ligging
Aan rustige weg en in woonwijk
Tuin
Achtertuin
Achtertuin
40 m² gelegen op het zuidoosten

Bergruimte

Schuur/berging
Vrijstaand hout

Garage

Soort garage
Geen garage

Vereniging van Eigenaren

Inschrijving KvK
Ja
Opstalverzekering
Ja

Media

Locatie

Meer informatie?