Neem contact op
Hoe kunnen wij je helpen?
19:37

Lange Hilleweg 60

3073BR ROTTERDAM

Beschikbaar

€ 754,- p.m.

Omschrijving

VOORKEURSPROFIEL VAN VERHUURDER: Internationale student of persoon in scheiding mét minderjarig kind (met aanwezigheid van echtscheidingsconvenant of ouderschapsplan). Niet roken en geen huisdieren. Aanvragen die niet voldoen aan het profiel van verhuurder worden niet in behandeling genomen.

---

Immobilia presenteert deze 2-kamer benedenwoning gelegen op de hoek met kleine tuin, berging en fietsenstalling. De woning is uitgerust met dubbele beglazing, een keukenblok, volledig betegelde badkamer met douchecabine en een apart toilet. De woning is gelegen nabij metrostation Maashaven, tevens nabij verschillende uitgaansgelegenheden, restaurantjes, supermarkten, openbaar vervoer en diverse uitvalswegen. Binnen ca. 10 á 15 minuten bent je in het hartje van Rotterdam!

Begane grond:
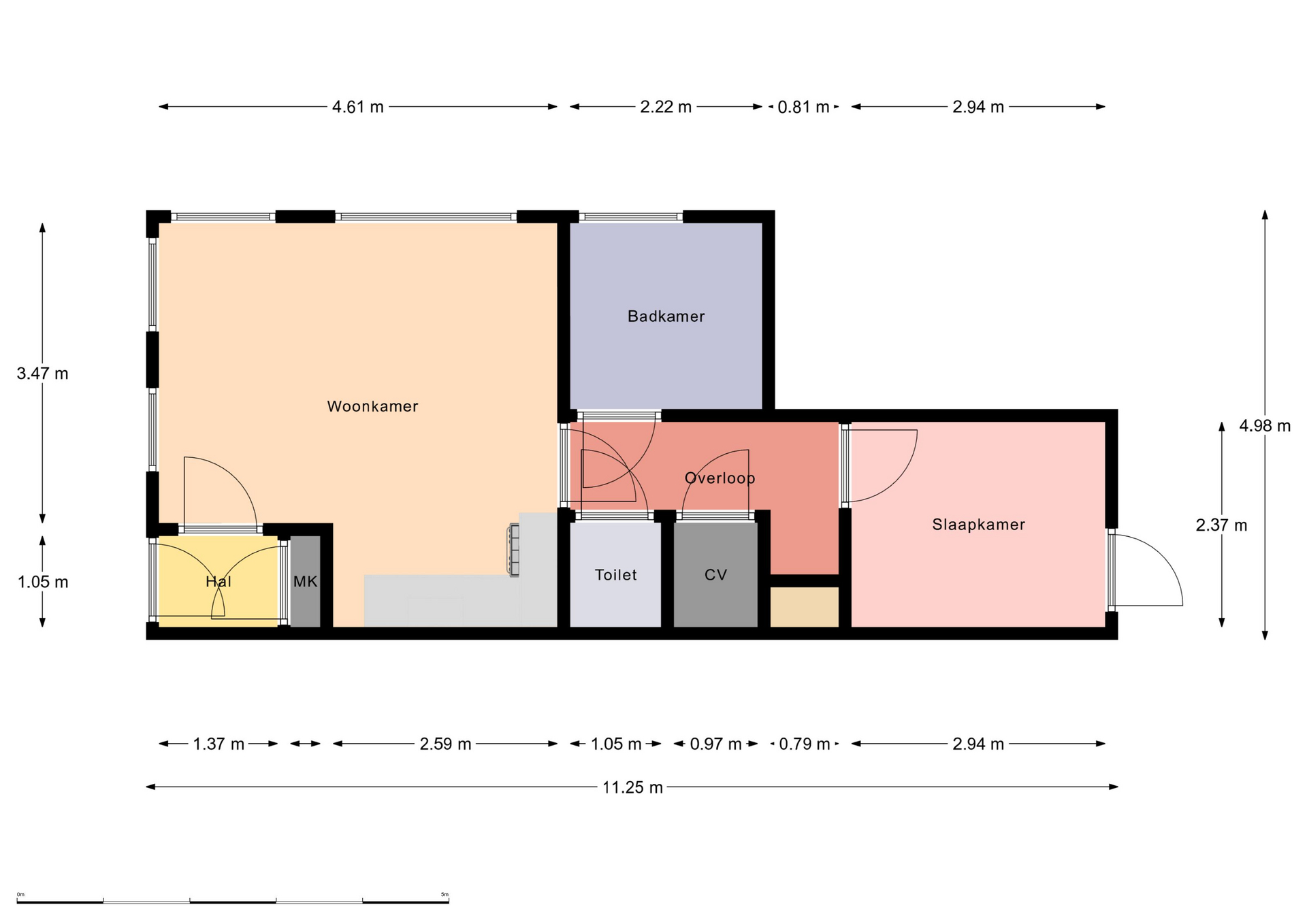
Entree in de hal met toegang tot de woonkamer. De woonkamer is gelegen aan de voorzijde en is zeer licht door de grote raampartijen. Open keuken in L-opstelling met een wit/grijze afwerking. Vanuit de woonkamer toegang tot de hal/overloop van waaruit de overige vertrekken te bereiken zijn. Slaapkamer van ca. 7m2, gelegen aan de achterzijde, heeft toegang tot het terras/tuin. Ruime badkamer voorzien van wastafel, douchecabine en de wasmachine aansluiting. Apart toilet. Binnen berging met de opstelling voor de cv-ketel.

Aan de achterzijde gelegen tuin met toegang tot fietsenstalling. Ruime kelderberging in de onderbouw gelegen.

Bijzonderheden:
- Gelegen op de hoek met veel lichtinval.
- Tuin aan de achterzijde.
- Eigen berging in de kelder.
- Aparte overdekte fietsenstalling op gemeenschappelijk terrein.
- Voorzien van laminaat door de gehele woning.

Huurcondities:
- Per direct beschikbaar voor maximaal 24 maanden.
- Huurprijs is excl. servicekosten van € 35,- per maand.
- Huurprijs is excl. gas, water, elektra, internet en tv. Contracten dienen zelf door de huurder bij de betreffende bedrijven afgesloten te worden.
- Huurprijsherziening: de huurprijs zal jaarlijks met een door het Centraal bureau voor de statistiek (CBS) vastgesteld percentage worden verhoogd, volgens het gestelde in de algemene bepalingen huurovereenkomst woonruimte.
- Waarborgsom: 2 maanden huur.

Om in aanmerking te komen voor deze woning zijn de eisen als volgt:
- Aantoonbaar inkomen uit werk. In de regel dient je bruto maandsalaris minimaal drie maal de maandhuur te bedragen.

Benodigde documenten bij interesse:
- Een kopie van je legitimatiebewijs waarbij je foto en BSN-nummer zijn afgeschermd.
- Een kleurenkopie van je bankpas.
- Uittreksel uit de gemeentelijke basis administratie persoonsgegevens.
- Een kopie van je arbeidsovereenkomst.
- Een werkgeversverklaring niet ouder dan drie maanden.
- Drie recente salarisstroken of inkomsten studiefinanciering.
- Je meest recente jaaropgave of IB60 formulier van personen boven de 18.
- Meest recente bankafschrift van de afgelopen drie maanden waarop de salarisstorting en de huurbetaling of hypotheekbetaling te zien is.
- Een verklaring van je huidige huisbaas/verhuurder dat je een goede huurder bent en geen huurschulden of achterstanden hebt.

Indien je student bent, hebben wij de volgende documenten van je nodig:
- Een kopie van je legitimatiebewijs waarbij je foto en BSN-nummer zijn afgeschermd.
- Een kleurenkopie van je bankpas.
- Uittreksel uit de gemeentelijke basis administratie persoonsgegevens.
- Je inkomstenoverzicht studiefinanciering aangevuld met je drie meest recente salarisstroken.
- Contactgegevens van de borgsteller en een legitimatiebewijs waarbij de foto en BSN-nummer zijn afgeschermd.
- Drie meest recente salarisstroken van de borgsteller.


Toelichtingsclausule Meetinstructie:
De Meetinstructie is gebaseerd op de NEN2580. De Meetinstructie is bedoeld om een meer eenduidige manier van meten toe te passen voor het geven van een indicatie van de gebruiksoppervlakte. De Meetinstructie sluit verschillen in meetuitkomsten niet volledig uit, door bijvoorbeeld interpretatieverschillen, afrondingen of beperkingen bij het uitvoeren van de meting.

Alle verstrekte informatie moet beschouwd worden als een uitnodiging tot het doen van een bod of om in onderhandeling te treden. Er kunnen geen rechten worden ontleend aan deze informatie.

Kenmerken

Overdracht

Huurprijs
€ 754 per maand
Aangeboden sinds
27 januari 2026
Status
Beschikbaar
Aanvaarding
Direct
Bijdrage VvE
€ 0,00 per maand

Bouw

Soort woning
Appartement
Soort appartement
Benedenwoning
Bouwjaar
2001
Soort dak
Dwarskap

Oppervlakten en inhoud

Oppervlakte wonen
39 m²
Oppervlakte externe bergruimte
5 m²
Inhoud
105 m³

Indeling

Aantal kamers
2
Aantal slaapkamers
1
Aantal badkamers
1
Badkamervoorzieningen
Douche, wastafel en wasmachineaansluiting
Aantal woonlagen
1
Gelegen op
1
Voorzieningen
Tv-kabel

Energie

Energielabel
D
Isolatie
Dubbel glas
Verwarming
Cv-ketel
Warm water
Cv-ketel
Cv-ketel
Combiketel

Buitenruimte

Ligging
Aan water, aan rustige weg en in woonwijk
Tuin
Achtertuin
Achtertuin
16 m² gelegen op het noordoosten met achterom

Bergruimte

Schuur/berging
Box

Garage

Soort garage
Geen garage

Vereniging van Eigenaren

Inschrijving KvK
Ja
Jaarlijkse vergadering
Ja
Periodieke bijdrage
Reservefonds aanwezig
Ja
Onderhoudsplan
Ja
Opstalverzekering
Ja

Media

Locatie

Meer informatie?