Neem contact op
Hoe kunnen wij je helpen?
22:36

Rubenslaan 207

2661RW BERGSCHENHOEK

Verhuurd

Omschrijving

Immobilia presenteert met trots een luxe en ruime 7-kamer eengezinswoning, gelegen aan een rustige straat in Bergschenhoek. De rust, luxe en ruimte die je in deze woning ervaart, zijn zo verleidelijk dat je het liefst nooit meer de deur uitgaat! De woning is gedeeltelijk gemeubileerd, bevindt zich in een rustige wijk en dankzij de centrale ligging zijn diverse uitvalswegen uitstekend bereikbaar. Winkelcentra, supermarkten, winkels, restaurants, sportverenigingen en het openbaar vervoer bevinden zich op minder dan 10 minuten fietsafstand. Heb je interesse? Plan dan gerust een bezichtiging met ons in!

Begane grond:
Via de entree heb je toegang tot de royale en luxe living van ca. 45 m². Vanwege de grote raampartijen oogt de gehele verdieping ruim en lichtelijk aan. Er bevindt zich een ruime zithoek met een grote bank, waar je samen heerlijk kunt genieten tegenover de televisie. Aan de voorzijde van de woning ligt de ruime L-vormige keuken, die dankzij de aanwezige raampartij een open en licht gevoel biedt. De keuken is voorzien van een aparte koelkast en diverse inbouwapparatuur, waaronder een oven, magnetron, vaatwasser, een 5-pits gasfornuis en een afzuigkap.

De gehele verdieping is voorzien van een houten laminaat vloer.
Aan de achterzijde heb je toegang tot de ruime tuin. Deze is volledig betegeld, praktisch ingericht en is voorzien van een schuur van 8,0 m2. Ideaal voor extra bergruimte of het stallen van fietsen.

Aangrensende ruimte van ongeveer 25 m² met een woonkamer, badkamer en pantry. Te bereiken via de woonkamer en via de achtertuin.

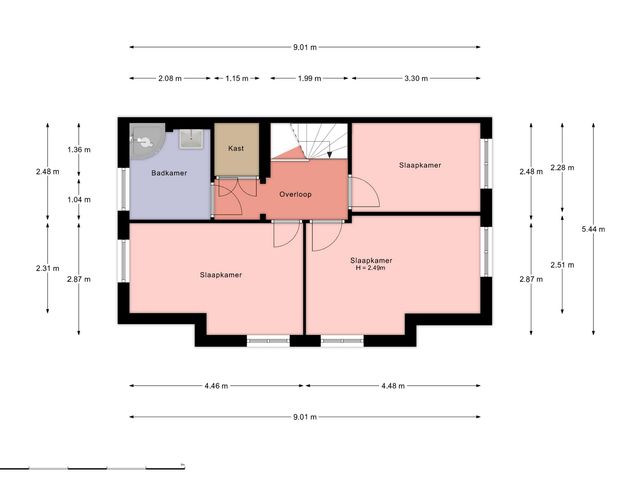
1e verdieping:
Vanaf de overloop bereik je de verschillende vertrekken. De royale master-bedroom van maar liefst 24m² is strak en modern afgewerkt met gladde wanden en een nette vloer. Wat deze kamer extra luxe maakt, is de directe toegang tot het balkon waar je ’s ochtends in alle rust kunt genieten van de zon.

De tweede slaapkamer is 14m² is eveneens ruim en uitstekend geschikt als kinder-, werk- of logeerkamer.

De luxe badkamer van 7m² is volledig betegeld en stijlvol afgewerkt in warme bruin- en wittinten. De badkamer is voorzien van een dubbele wastafel, kastwanden, een inloopdouche, een toilet en een grote raampartij die zorgt voor veel natuurlijk licht en goede ventilatie.

2e verdieping:
Via de overloop heb je toegang tot drie volwaardige slaapkamers en de badkamer. Slaapkamer III (8m²), slaapkamer IV (13m²) en slaapkamer V (13m²) zijn veelzijdig in te richten en uitstekend geschikt als kinder-, werk- of logeerkamer. De 2e badkamer van 5m² is praktisch ingedeeld en beschikt over een douchecabine, wastafel en een aansluiting voor de wasmachine.

Bijzonderheden:
- Gelegen aan een rustige straat op een centrale ligging.
- Gedeeltelijk gemeubileerd
- Uitstekende bereikbaarheid van uitvalswegen
- Balkon aan de achterzijde aanwezig
- Parkeergelegenheid langs de weg.

Huurcondities:
- Beschikbaar per direct.
- Huurprijs is incl. stoffering.
- Huurprijs is excl. gas, water, elektra, internet en tv. Contracten dienen zelf door de huurder bij de betreffende bedrijven afgesloten te worden.
- Huurprijsherziening: de huurprijs zal jaarlijks met een door het Centraal bureau voor de statistiek (CBS) vastgesteld percentage worden verhoogd, volgens het gestelde in de algemene bepalingen huurovereenkomst woonruimte.
- Waarborgsom: 2 maanden huur.

Om in aanmerking te komen voor deze woning zijn de eisen als volgt:
- Aantoonbaar inkomen uit werk. In de regel dient je bruto maandsalaris minimaal drie maal de maandhuur te bedragen.

Benodigde documenten bij interesse:
- Een kleurenkopie van een legitimatiebewijs waarbij het BSN-nummer onherkenbaar is gemaakt.
- Een kleurenkopie van je bankpas.
- Uittreksel basisregistratie personen (BRP).
- Een kopie van je arbeidsovereenkomst.
- Een werkgeversverklaring niet ouder dan drie maanden.
- Drie recente salarisstroken of inkomsten studiefinanciering.
- Je meest recente jaaropgave of IB60 formulier van personen boven de 18.
- Meest recente bankafschrift van de afgelopen drie maanden waarop de salarisstorting en de huurbetaling of hypotheekbetaling te zien is.
- Een verklaring van je huidige huisbaas/verhuurder dat je een goede huurder bent en geen huurschulden of achterstanden hebt.

Indien je (zelfstandig) ondernemer bent, hebben wij de volgende documenten van je nodig:
- Een kleuren kopie van een geldig identiteitsbewijs van de bestuurder(s) van de onderneming, waarbij het BSN-nummer onherkenbaar is gemaakt.
- Een kleurenkopie van je bankpas.
- Een uittreksel van het handelsregister van de Kamer van Koophandel niet ouder dan drie weken.
- Btw-nummer.
- Goedgekeurde jaarstukken en een actuele balans, winst- en verliesrekening.
- Meest recente bankafschrift van de afgelopen drie maanden waarop de huurbetaling of hypotheekbetaling te zien is.
- Een verklaring van je huidige verhuurder dat je een goede huurder bent en geen huurschulden of achterstanden hebt (indien van toepassing).

Toelichtingsclausule NEN2580
De Meetinstructie is gebaseerd op de NEN2580. De Meetinstructie is bedoeld om een meer eenduidige manier van meten toe te passen voor het geven van een indicatie van de gebruiksoppervlakte. De Meetinstructie sluit verschillen in meetuitkomsten niet volledig uit, door bijvoorbeeld interpretatieverschillen, afrondingen of beperkingen bij het uitvoeren van de meting.

Kenmerken

Overdracht

Aangeboden sinds
29 december 2025
Status
Verhuurd
Aanvaarding
Direct

Bouw

Soort woning
Woonhuis
Bouwjaar
1998
Soort dak
Plat dak

Oppervlakten en inhoud

Oppervlakte wonen
177 m²
Oppervlakte gebouwgebonden buitenruimte
12 m²
Oppervlakte externe bergruimte
8 m²
Perceel
207 m²
Inhoud
542 m³

Indeling

Aantal kamers
7
Aantal slaapkamers
6
Aantal badkamers
3
Badkamervoorzieningen
Toilet, wastafelmeubel, inloopdouche, douche en wastafel
Aantal woonlagen
3 woonlagen
Voorzieningen
Tv-kabel en natuurlijke ventilatie

Energie

Energielabel
B
Isolatie
Muurisolatie en dubbel glas
Verwarming
Cv-ketel
Warm water
Cv-ketel
Cv-ketel
Combiketel

Buitenruimte

Ligging
In woonwijk en vrij uitzicht
Tuin
Achtertuin en voortuin
Achtertuin
38 m² gelegen op het noordwesten met achterom

Bergruimte

Schuur/berging
Vrijstaand steen

Garage

Soort garage
Geen garage

Media

Locatie

Meer informatie?