VERHUURD BINNEN 4 WEKEN

Brandweerstraat 75
Bleiswijk

Verhuurd

Overdracht

Huurprijs
€ 1.250,- p/m
Status
verhuurd
Aanvaarding
per direct

Bouw

Hoofdbestemming
bedrijfsruimte
Bouwjaar
2019

Bedrijfshal

Oppervlakte
80m²
Vrije hoogte
7
Vrije overspanning
6
Vloerbelasting
1500
Voorzieningen
Overheaddeuren, betonvloer, toilet en pantry

Kantoorruimte

Oppervlakte
40m²
Verdiepingen
1
Opleverings voorzieningen
Te openen ramen

Buitenruimte

Ligging
Bedrijventerrein en overig

Parkeergelegenheid

Faciliteiten
Parkeren voor de deur van de unit.

Brandweerstraat 75, Bleiswijk

Immobilia presenteert een bedrijfshal van ca. 80m2 (BVO) met een entresol van 39m2 (VVO), in totaal ca. 119m2 (BVO). De bedrijfshal beschikt over een overheaddeur, een loopdeur en twee (2) eigen parkeerplaatsen. Centraal gelegen op bedrijventerrein De Hoefslag in Bleiswijk. Goed bereikbaar vanaf de A12, A13 de A20.
AUTOBEDRIJVEN/GARAGE ZIJN NIET TOEGESTAAN.

Begane grond:
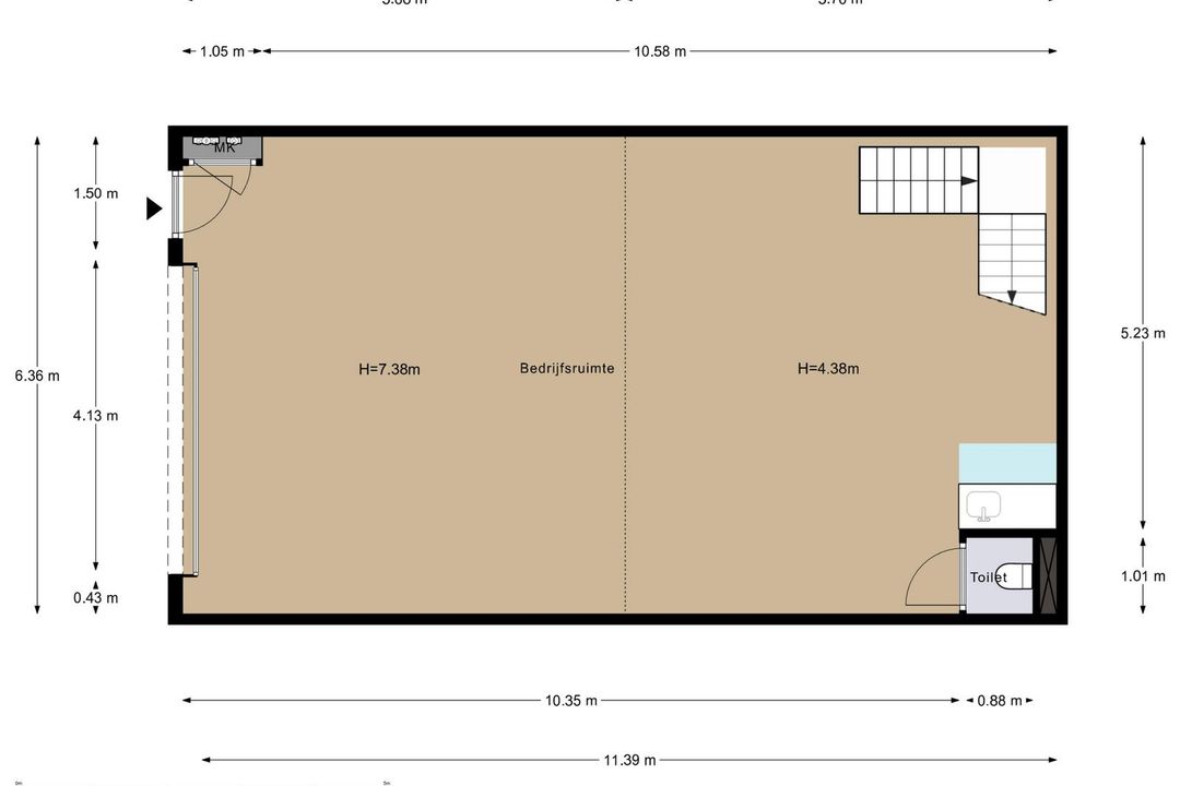
Bedrijfshal van ca. 72m2 (VVO) met pantry, toilet en trap naar 1e verdieping. De bedrijfshal is te bereiken via een loopdeur en overheaddeur. De overheaddeur is ca. 4 meter hoog en 4 meter breed.

De hal is voorzien van vloerverwarming middels aardwarmte.

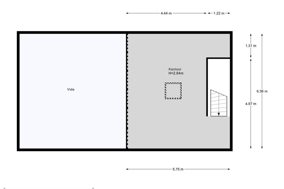
Entresol:
De entresol meet ca. 33m2 (VVO) en ligt aan de achterzijde van de bedrijfshal. Het unieke is dat er een elektrisch bedienbaar daklicht is geïnstalleerd. Hierdoor is er extra daglichttoetreding en is het tevens mogelijk om te ventileren. Vanaf de entresol heb je zicht op de hal.

Bijzonderheden:
- Overheaddeur van 4 meter breed en 4 meter hoog.
- Verwarming middels aardwarmte en vloerverwarming.
- Twee (2) eigen parkeerplaatsen.
- Elektrisch bedienbaar daklicht op de entresol.
- Internetaansluiting is aanwezig.

Vloerbelasting:
- Begane grond: 1.500 kg per m2.
- 1e verdieping: Beton 500 kg per m2.

Huurspecificaties:
Huurprijs:
€ 15.000,- per jaar excl. btw.

Huurtermijn:
In overleg met verhuurder.

Huuringangsdatum:
Beschikbaar per direct.

Huurprijsherziening:
Jaarlijks op basis van de CPI-index van het CBS

Huurbetaling:
Per maand vooruit.

Nutsvoorzieningen:
Huurprijs excl. G/W/L.

Servicekosten:
€ 60,- per maand excl. btw.

Bankgarantie/waarborgsom:
Drie maanden huur plus servicekosten excl. btw.

Huurovereenkomst:
Conform model ROZ.

BTW:
Verhuurder wenst te opteren voor btw-belaste huur en verhuur. Ingeval huurder de BTW niet kan verrekenen zal de huurprijs worden verhoogd ter compensatie van de gevolgen van het vervallen van de mogelijkheid om te opteren voor btw-belaste huur.

Immobilia presents an industrial unit of approx. 80 m² (GFA) with a mezzanine of 39 m² (GFA), totalling approx. 119 m² (GFA). The industrial unit has an overhead door, a pedestrian door and two (2) private parking spaces. Centrally located on the De Hoefslag industrial estate in Bleiswijk. Easily accessible from the A12, A13 and A20 motorways.
CAR DEALERSHIPS/GARAGES ARE NOT PERMITTED.

Ground floor:
Industrial unit of approx. 72m2 (VVO) with pantry, toilet and stairs to the 1st floor. The industrial unit can be accessed via a pedestrian door and overhead door. The overhead door is approx. 4 metres high and 4 metres wide.

The hall has underfloor heating using geothermal energy.

Mezzanine:
The mezzanine measures approx. 33m2 (VVO) and is located at the rear of the industrial unit. A unique feature is the electrically operated skylight, which provides extra daylight and ventilation. The mezzanine offers a view of the hall.

Special features:
- Overhead door 4 metres wide and 4 metres high.
- Heating via geothermal energy and underfloor heating.
- Two (2) private parking spaces.
- Electrically operated skylight on the mezzanine.
- Internet connection is available.

Floor load:
- Ground floor: 1,500 kg per m2.
- 1st floor: Concrete 500 kg per m2.

Rental specifications:
Rental price:
€15,000 per year excluding VAT.

Rental period:
In consultation with the landlord.

Rental commencement date:
Available immediately.

Rent payment:
Per month in advance.

Utilities:
Rent excludes gas, water and electricity.

Service charges:
€60 per month excluding VAT.

Bank guarantee/deposit:
Three months' rent plus service charges excluding VAT.

Tenancy agreement:
In accordance with ROZ model.

VAT:
The landlord wishes to opt for VAT-taxed rent and letting. If the tenant is unable to offset the VAT, the rent will be increased to compensate for the consequences of losing the option to opt for VAT-taxed rent.

Rental price review:
Annually based on the CPI index of Statistics Netherlands (CBS)

Video

Locatie

 

Neem contact met ons op