VERHUURD BINNEN 4 WEKEN

Industrieweg 64
Berkel En Rodenrijs

Verhuurd

Overdracht

Huurprijs
€ 5.250,- p/m
Status
verhuurd
Aanvaarding
per direct

Bouw

Hoofdbestemming
bedrijfsruimte
Bouwjaar
1986

Bedrijfshal

Oppervlakte
372m²
Vrije hoogte
769
Vrije overspanning
20
Vloerbelasting
1500
Voorzieningen
Lichtstraten, overheaddeuren, krachtstroom, betonvloer en heater

Kantoorruimte

Oppervlakte
120m²
Verdiepingen
2
Opleverings voorzieningen
Te openen ramen

Buitenruimte

Ligging
Bedrijventerrein en overig

Parkeergelegenheid

Faciliteiten
Openbaar parkeren op het terrein.

Industrieweg 64, Berkel En Rodenrijs

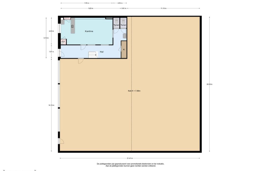
Immobilia presenteert een multifunctioneel bedrijfspand met een ruime bedrijfshal van ca. 370m2 en een luxe kantoorruimte van ca. 120m2. Tevens beschikt het pand over meerdere eigen parkeerplaatsen voor de deur. Gelegen op een centrale locatie op bedrijventerrein Rodenrijs, op enkele autominuten gelegen van de A13 en de A20.

Begane grond:
Entree in de hal met toegang tot alle vertrekken. Kantoor/kantine van ca. 30m2 gelegen aan de voorkant van het pand. Uitgevoerd met een keuken met bar, radiatoren en de kast met de cv-ketel. Vanuit de overloop toegang tot de toiletten. Beide toiletten zijn in zijn geheel betegeld in het wit en uitgevoerd met een hangend toilet waarvan één toilet tevens is voorzien van een urinoir. Losse wastafel met meubel en spiegel.

Vanuit de entree toegang tot de bedrijfshal van ca. 370m2. De hal heeft een vrije hoogte van ca. 7,69m, heeft een lichtstraat en is voorzien van een nieuwe betonvloer. Middels een heater is de ruimte te verwarmen. De drie overheaddeuren zijn elektrisch bedienbaar.

Via een trap toegang tot de 1e verdieping.

1e Verdieping:
Overloop met toegang tot twee kantoren van ca. 14 en 32m2. Het kantoor van 32m2 is gelegen aan de voorkant en is voorzien va een laminaatvloer, inbouwspots, radiatoren, airco en een keuken. Tevens een bergruimte van ca. 3,5m2. Het kantoor van ca. 14m2 is bereikbaar middels een glazen deur en is eveneens voorzien van een nette laminaatvloer en een raam met uitzicht op de bedrijfshal.

Voorzieningen:
- Elektrische overheaddeuren (3x). De deuren hebben een afmeting van 4 meter breed en 4 meter hoog.
- Krachtstroom aanwezig.
- Eigen Cv-ketel / verwarming.
- Meerdere eigen parkeerplaatsen voor de deur.
- Brandmiddelen aanwezig.
- Uitgevoerd met een alarminstallatie.

Vloerbelasting:
- Begane grond: 1.500 kg per m2.

Huurspecificaties:
Huurprijs:
63.000,- per jaar excl. BTW.

Huurtermijn:
In overleg met verhuurder, voorkeur voor minimaal 36 maanden.

Huuringangsdatum:
Per direct beschikbaar.

Huurprijsherziening:
Jaarlijks op basis van de CPI-index van het CBS.

Huurbetaling:
Per maand vooruit.

Nutsvoorzieningen:
Huurprijs excl. G/W/L.

Servicekosten:
€ 100,- per maand excl. btw.

Bankgarantie/waarborgsom:
Drie maanden huur excl. BTW.

Huurovereenkomst:
Conform model ROZ.

BTW:
Verhuurder wenst te opteren voor BTW-belaste huur en verhuur. Ingeval huurder de BTW niet kan verrekenen zal de huurprijs worden verhoogd ter compensatie van de gevolgen van het vervallen van de mogelijkheid om te opteren voor BTW-belaste huur.

Immobilia presents a multifunctional commercial property with a spacious industrial hall of approx. 370 m² and a luxurious office space of approx. 120 m². The property also has several private parking spaces in front of the door. Located in a central location on the Rodenrijs industrial estate, just a few minutes' drive from the A13 and A20 motorways.

Ground floor:
Entrance hall with access to all rooms. Office/canteen of approx. 30 m² located at the front of the building. Equipped with a kitchen with bar, radiators and cupboard with central heating boiler. Access to the toilets from the landing. Both toilets are fully tiled in white and equipped with a wall-mounted toilet, one of which also has a urinal. Separate washbasin with cabinet and mirror.

Access to the industrial hall of approx. 370 m² from the entrance. The hall has a clear height of approx. 7.69 m, a skylight and a new concrete floor. The space can be heated by a heater. The three overhead doors are electrically operated.

A staircase provides access to the first floor.

First floor:
Landing with access to two offices of approx. 14 and 32 m². The 32 m² office is located at the front and has laminate flooring, recessed spotlights, radiators, air conditioning and a kitchen. There is also a storage room of approx. 3.5 m². The office of approx. 14 m² is accessible through a glass door and also has neat laminate flooring and a window overlooking the industrial hall.

Facilities:
- Electric overhead doors (3x). The doors are 4 metres wide and 4 metres high.
- Own central heating boiler/heating.
- Several private parking spaces in front of the door.
- Fire extinguishers available.
- Equipped with an alarm system.

Floor load:
- Ground floor: 1,500 kg per m2.

Rental specifications:
Rental price:
63,000 per year excluding VAT.

Rental period:
In consultation with the landlord, preference for a minimum of 36 months.

Rental commencement date:
Available immediately.

Rental price review:
Annually based on the CPI index of Statistics Netherlands (CBS).

Rental payment:
Monthly in advance.

Utilities:
Rental price excluding gas, water and electricity.

Service charges:
€100 per month excluding VAT.

Bank guarantee/deposit:
Three months' rent excluding VAT.

Tenancy agreement:
In accordance with ROZ model.

VAT:
The landlord wishes to opt for VAT-taxed rent and letting. If the tenant is unable to offset the VAT, the rent will be increased to compensate for the consequences of losing the option to opt for VAT-taxed rent

Video

Locatie

 

Neem contact met ons op