NIEUW!

Tasmanstraat 162
'S-Gravenhage

€ 4.250,- p/m

Overdracht

Huurprijs
€ 4.250,- p/m
Status
beschikbaar
Aanvaarding
per direct
VVE.checklist
niet aanwezig

Bouw

Soort woning
appartement
Soortappartement
bovenwoning
Aantal woonlagen
3
Woonlaag
1
Kwaliteit
luxe
Bouwvorm
bestaande bouw
Open portiek
nee
Huidige bestemming
woonruimte
Dak
mansarde dak
Bijzonderheden
gestoffeerd
Voorzieningen
dakraam en rookkanaal

Energie

Energielabel
B
Verwarming
open haard en c.v.-ketel
Warm water
c.v.-ketel

Oppervlakten en inhoud

Woonoppervlakte
187 m²
Perceeloppervlakte
140 m²
Inhoud
685 m³
Buitenruimte oppervlakte
35 m²

Indeling

Aantal kamers
5
Aantal slaapkamers
4

Buitenruimte

Ligging
aan rustige weg, in woonwijk en vrij uitzicht

Bergruimte

Garage
parkeerplaats

Parkeergelegenheid

Parkeergelegenheid
betaald parkeren en parkeervergunningen

Tasmanstraat 162, 'S-Gravenhage

Immobilia proudly presents a beautifully finished and very luxurious double upstairs apartment, in a wonderful location. The house, consisting of three levels, has four spacious bedrooms, two bathrooms and an oversized, sunny terrace. The house has its own off-street, gated parking space within walking distance. The house has been completely renovated with high quality materials. Located in the popular Zeeheldenkwartier, with various shops and restaurants within walking distance, as well as excellent public transport access. The center of The Hague and the beach of Scheveningen are within cycling distance. This house is really a picture to fall in love with!

Ground floor:
Private entrance at street level, hall with stairs to the first floor.

First floor:
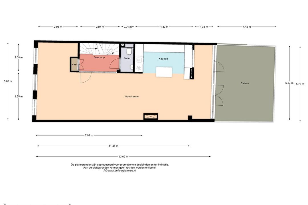
Landing with access to the living room through modern steel doors, stairs to the second floor and separate toilet with washbasin. The living room is approximately 75m2 (including kitchen) and stretches the entire length of the house. Designer open-plan kitchen with fridge, microwave, oven, dishwasher, induction hob and integrated extractor. There is a beautiful gas fireplace. At the back of the house is a large terrace (approx. 25m2) located on the sunny south west. Solid oak flooring throughout.

2nd Floor:
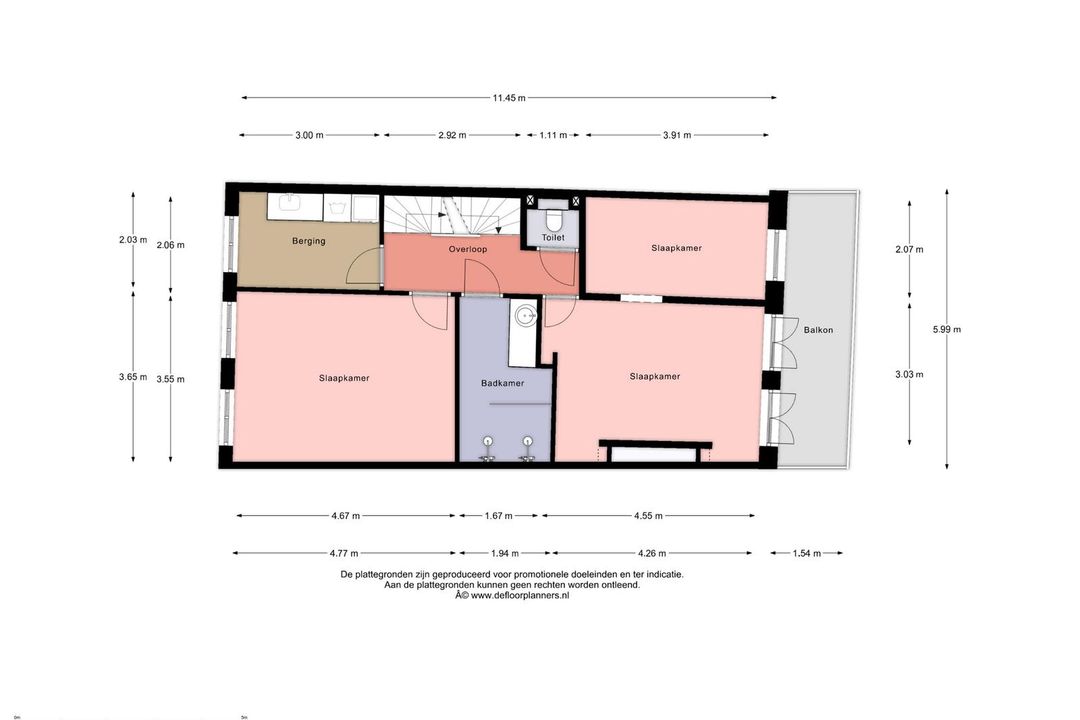
Landing with access to the rooms. Second separate toilet. Bedroom I, used as a master bedroom (approx. 25m2) and located at the rear of the house. This bedroom is the full width of the house and has a large walk-in closet. From this bedroom there is access to a spacious balcony (almost 9m2) located on the sunny south west. At the front is bedroom II of approx. 17m2, light and spacious with lovely views of the garden across the street. Good-sized separate laundry room with storage, counter space, sink and included washing machine and dryer. The luxurious bathroom has a double walk-in shower, washbasin and underfloor heating. Solid oak flooring throughout.

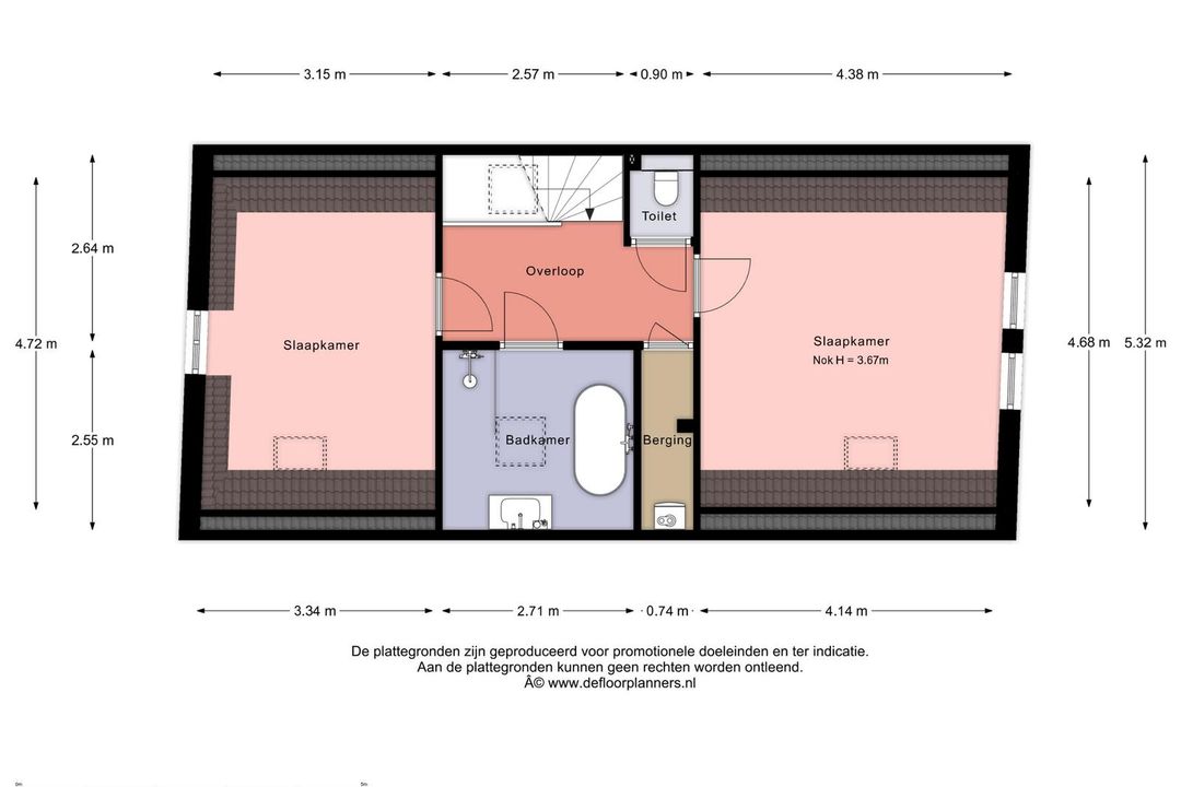
3th floor:
Landing with access to the rooms. On this floor there are 2 more bedrooms and a second luxury bathroom. Bedroom III is also very spacious and is almost 24m2, located at the rear of the house. A 3rd toilet can be reached from the landing. Bedroom IV facing the front side has an area of approximately 18m2. Bathroom II provides a spa-like retreat, equipped with large bath tub, washbasin and spacious walk-in shower. With a beautiful roof dome, underfloor heating and recessed spotlights, this is a space to enjoy immensely.

Particularities:
- Immediately available.
- The house is partly furnished (washing machine and dryer included).
- Shops, restaurants, schools and roads in the vicinity.
- Reserved off-street parking space located in gated courtyard on the van Speijkstraat.
- Two luxury bathrooms.
- Oversized terrace located on the sunny south west.

Rental conditions:
- The house is directly available.
- Rent is including window treatments (curtains, blinds, and electric roller sun-blinds on first floor)
- Rent is excluding internet and TV. Contracts must be concluded by the tenant himself. Fibre optic network cabling has been newly installed in the street.
- Rent review: the rent will be increased annually by a percentage determined by the Central Bureau of Statistics (CBS), in accordance with the provisions of the general provisions of the rental agreement for accommodation.
- Deposit: 2 months' rent.

To qualify for this property, the requirements are as follows:
- Demonstrable income from work. As a rule, your gross monthly salary must be at least three times the monthly rent.

Required documents if interested:
- A copy of your proof of identity in which your photo and citizen service number are shielded.
- A color copy of your bank card.
- Extract from the municipal personal records database.
- A copy of your employment contract.
- An employer's statement not older than three months.
- Three recent salary slips or income from student finance.
- Your most recent annual statement or IB60 form for persons over 18.
- Most recent bank statement of the past three months showing the salary deposit and the rent payment or mortgage payment.
- A statement from your current landlord/landlord that you are a good tenant and have no rent debts or arrears.

Explanation NEN 2580:
The measurement instruction is based on NEN 2580. The measurement instruction is intended to apply a more unambiguous method of measurement to give an indication of the usable area. The measurement instruction does not completely exclude differences in measurement results, for example due to differences in interpretation, rounding off or limitations when performing the measurement. The attached floor plans have been measured according to the measuring instruction.

All information provided should be regarded as an invitation to make an offer or to enter into negotiations. No rights can be derived from this information.

---

Immobilia presenteert met trots een prachtig afgewerkt en zeer luxe dubbele bovenwoning, op een heerlijke locatie. De woning, bestaande uit drie woonlagen, beschikt over vier ruime slaapkamers, twee badkamers en een oversized, zonnig terras. Het huis heeft een eigen afgesloten parkeerplaats op loopafstand. De woning is volledig gerenoveerd met hoogwaardige materialen. Gelegen in het populaire Zeeheldenkwartier, met diverse winkels en restaurants op loopafstand en tevens uitstekend bereikbaar met het openbaar vervoer. Het centrum van Den Haag en het strand van Scheveningen zijn op fietsafstand. Deze woning is echt een plaatje om verliefd op te worden!

Begane grond:
Eigen entree op straatniveau, hal met trap naar de eerste verdieping.

1e Verdieping:
Overloop met toegang tot de woonkamer middels moderne stalen deuren, trap naar de tweede verdieping en separaat toilet met fonteintje. De woonkamer is circa 75m2 (inclusief keuken) en strekt zich uit over de gehele lengte van de woning. Design open keuken voorzien van koelkast, magnetron, oven, vaatwasser, inductiekookplaat en geïntegreerde afzuigkap. Er is een mooie gashaard. Aan de achterzijde van de woning is een groot terras (ca. 25m2) gelegen op het zonnige zuidwesten. Overal massief eiken vloeren.

2e Verdieping:
Overloop met toegang tot de vertrekken. Tweede apart toilet. Slaapkamer I, in gebruik als master bedroom (ca. 25m2) en gelegen aan de achterzijde van de woning. Deze slaapkamer is over de volle breedte van de woning en heeft een grote inloopkast. Vanuit deze slaapkamer is er toegang tot een ruim balkon (bijna 9m2) gelegen op het zonnige zuidwesten. Aan de voorzijde is slaapkamer II van ca. 17m2, licht en ruim met heerlijk uitzicht op de tuin aan de overkant. Ruime aparte wasruimte met berging, aanrechtruimte, wastafel en inclusief wasmachine en droger. De luxe badkamer is voorzien van een dubbele inloopdouche, wastafelmeubel en vloerverwarming. Overal massief eiken vloeren.

3e Verdieping:
Overloop met toegang tot de vertrekken. Op deze verdieping bevinden zich nog 2 slaapkamers en een tweede luxe badkamer. Slaapkamer III is eveneens zeer ruim en is bijna 24m2 groot, gelegen aan de achterzijde van de woning. Vanaf de overloop is een 3e toilet te bereiken. Slaapkamer IV aan de voorzijde heeft een oppervlakte van circa 18m2. Badkamer II biedt een spa-achtig toevluchtsoord, uitgerust met groot ligbad, wastafel en ruime inloopdouche. Met een prachtige dakkoepel, vloerverwarming en inbouwspots is dit een ruimte om enorm van te genieten.

Bijzonderheden:
- De woning wordt deels gestoffeerd verhuurd, inclusief wasmachine en wasdroger.
- Winkels, restaurants, scholen en uitvalswegen in de nabije omgeving.
- Eigen afgesloten parkeerplaats gelegen aan de van Speijkstraat.
- Twee (2) luxe badkamers.
- Dakterras gelegen op het zonnige zuidwesten.

Huurcondities:
- De woning is per direct beschikbaar.
- Huurprijs is incl. stoffering.
- Huurprijs is excl. internet en tv. Contracten dienen zelf door de huurder afgesloten te worden.
- Huurprijsherziening: de huurprijs zal jaarlijks met een door het Centraal bureau voor de statistiek (CBS) vastgesteld percentage worden verhoogd, volgens het gestelde in de algemene bepalingen huurovereenkomst woonruimte.
- Waarborgsom: 2 maanden huur.

Om in aanmerking te komen voor deze woning zijn de eisen als volgt:
- Aantoonbaar inkomen uit werk. In de regel dient je bruto maandsalaris minimaal drie maal de maandhuur te bedragen.

Benodigde documenten bij interesse:
- Een kopie van je legitimatiebewijs waarbij je foto en BSN-nummer zijn afgeschermd.
- Een kleurenkopie van je bankpas.
- Uittreksel uit de gemeentelijke basis administratie persoonsgegevens.
- Een kopie van je arbeidsovereenkomst.
- Een werkgeversverklaring niet ouder dan drie maanden.
- Drie recente salarisstroken of inkomsten studiefinanciering.
- Je meest recente jaaropgave of IB60 formulier van personen boven de 18.
- Meest recente bankafschrift van de afgelopen drie maanden waarop de salarisstorting en de huurbetaling of hypotheekbetaling te zien is.
- Een verklaring van je huidige huisbaas/verhuurder dat je een goede huurder bent en geen huurschulden of achterstanden hebt.

Toelichting NEN 2580:
De meetinstructie is gebaseerd op NEN 2580. De meetinstructie is bedoeld om een meer eenduidige manier van meten toe te passen voor het geven van een indicatie van de gebruiksoppervlakte. De meetinstructie sluit verschillen in meetuitkomsten niet volledig uit, door bijvoorbeeld interpretatieverschillen, afrondingen of beperkingen bij het uitvoeren van de meting. Bijgevoegde plattegronden zijn ingemeten volgens de meetinstructie.

Alle verstrekte informatie moet beschouwd worden als een uitnodiging tot het doen van een bod of om in onderhandeling te treden. Er kunnen geen rechten worden ontleend aan deze informatie.

Video

Locatie

 

Neem contact met ons op